Archventil
Studio internazionale di architettura a Milano

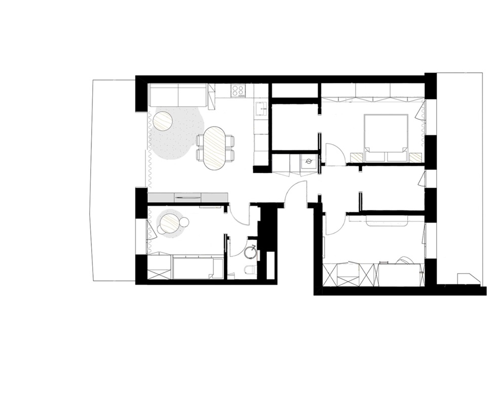
PSL: appartamento di 80mq, Milano, Italia

Area

80mq

Committente

Privato

Anno

2022

Posizione

Milano, Italia

Categoria

Interni Residenziali

Progettazione Interni

Bespoke è la parola d’ordine per questo progetto. La casa si apre sulla zona living con cucina a vista dotata di tutte le funzionalità fondamentali. Quello che potrebbe risultare un elemento di divisione è in realtà un dettaglio che grazie all’apertura ad arco tra zona lavello e area relax crea continuità riprendendo una geometria che lega l’intero progetto.

Il segreto per un buon progetto inizia dallo studio della planimetria per disporre al meglio gli ambienti e ottimizzare gli spazi per tirar fuori le sue potenzialità, senza mai dimenticare i dettagli.
Dopo/After
_archventil_interior_design_architettura_development_interni_residenziale_immobiliare_milano_80mq_smart_appartment
Prima/Before
_archventil_interior_design_architettura_development_interni_residenziale_immobiliare_milano_80mq_smart_appartment

Dettagli
del Progetto

Lo stile è essenziale e lascia spazio alla matericità ed eleganza della resina utilizzata per il pavimento, il legno per gli arredi e la leggerezza delle strutture nere opache. Il divano in nicchia, così come la camera da letto, sono state progettate partendo dall’idea di una casa che fosse sinonimo di nido, in cui sentirsi accolti e a al sicuro a primo impatto.

“Ci siamo affidati ad Archventil per la realizzazione del progetto della nostra prima casa. Siamo rimasti molto soddisfatti dalla professionalità e dalla qualità del progetto sviluppato nei minimi dettagli con cura e attenzione. Consigliatissimo!” – Martina Falzetti

“Ci siamo avvalsi dei servizi professionali di Archventil per la nostra nuova casa e siamo rimasti molto soddisfatti del lavoro svolto. Consigliatissimi per competenza e serietà.” – Lamberto Carotti
archventil_interior_design_architettura_residenziale_appartamento_milano_italia_bespoke_80_psl_pasolini_funzionalità_geometrica_eleganza

Progetti in vetrina

Un ufficio moderno con una scrivania nera, sedie beige, una lampada da tavolo nera minimalista e pareti con pannelli in legno chiaro sullo sfondo mostra il Design Contemporaneo in un ambiente pulito ed elegante.
Interni Commerciali

Casa Archventil: ufficio di 340mq con terrazza panoramica in via Gian Battista Vico, Milano

Moderno monolocale BnB nel centro storico di Torino, dal design classico contemporaneo progettato da Archventil. Dispone di letto con parete parziale, TV, angolo cottura compatto, salotto accogliente, ampia poltrona, finestre alte e arredamento minimalista.
Hospitality

TRN: appartamento BnB di 33mq, piazza Savoia Torino, Italia

Piscina interna con pareti chiare, un cestino sul pavimento e grandi finestre ad arco che rivelano il giardino e gli alberi all'esterno. La luce naturale esalta l'atmosfera serena e minimalista e sottolinea lo stile Design Contemporaneo.
Interni Residenziali

SNO: villa storica di 400mq ca, Lago di Garda, Italia