Archventil
Studio internazionale di architettura a Milano

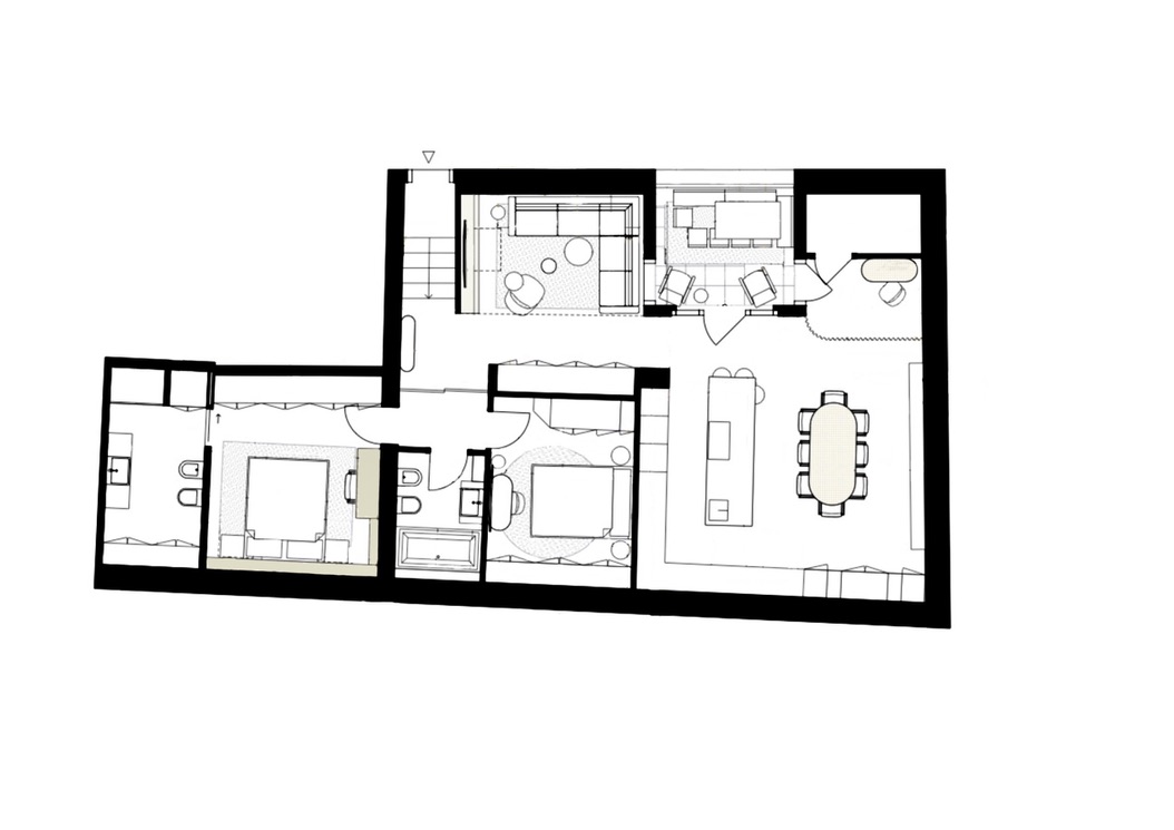
PV: appartamento di 107mq, Corso Carlo Alberto, Pavia, Italia

Area

107mq

Committente

Archventil

Anno

2025

Posizione

Pavia, Italia

Categoria

Interni Residenziali
_archventil_interior_design_architettura_development_pavia_107mq_styling_interni_residenziali

Progettazione Interni
& Styling

Il progetto PV si colloca in un edificio storico recentemente restaurato e riguarda un appartamento di nuova costruzione di 107 mq, progettato appositamente per una giovane studentessa di Pavia. La proprietà unisce il fascino di un edificio storico con tutti i comfort di uno spazio contemporaneo, offrendo un’esperienza abitativa moderna e funzionale.

L’appartamento dispone di un’ampia terrazza che permette di godere della luce naturale e di piacevoli vedute, oltre a una zona living integrata con soggiorno e cucina a isola. La zona notte comprende due camere da letto e due bagni, offrendo privacy e comfort alla proprietaria e ai suoi ospiti.

L’obiettivo principale del progetto era trasformare uno spazio originariamente dominato da tonalità fredde e grigie in un ambiente caldo, accogliente e funzionale, in grado di riflettere lo stile e le esigenze della giovane proprietaria. Si è cercato un equilibrio tra eleganza e praticità, creando un ambiente che, oltre a risultare confortevole per la vita quotidiana, permettesse anche di ospitare amici e familiari con facilità, grazie a elementi chiave come un ampio divano e un generoso tavolo da pranzo.
Dopo/After
_archventil_interior_design_architettura_development_pavia_107mq_styling_interni_residenziali
Prima/Before
_archventil_interior_design_architettura_development_pavia_107mq_styling_interni_residenziali

Dettagli
del Progetto

Per la zona notte è stato scelto un verde intenso che conferisce un effetto rilassante e sereno alla camera principale, creando un vero e proprio rifugio personale all’interno dell’appartamento. La selezione dei materiali e delle finiture è stata realizzata con grande attenzione, privilegiando colori chiari e neutri per generare armonia, ma introducendo contrasti di texture per donare profondità e carattere agli spazi. Ad esempio, tappeti più strutturati si combinano con cuscini su un divano dalla superficie uniforme, creando un gioco di materiali che arricchisce l’esperienza visiva e tattile del soggiorno.

L’arredamento è stato selezionato con cura per riflettere eleganza e funzionalità. Il tavolo da pranzo, laccato con gambe in noce, è abbinato a sedie in beige-rosato leggermente a contrasto, mentre gli elementi in legno, come scrivanie, comodini e tavolini da caffè, sono presenti in tutto l’appartamento con finitura in noce, apportando coerenza e calore. Inoltre, sono state inserite soluzioni di illuminazione strategiche con finitura dorata, sia nel soggiorno che nelle camere, per valorizzare l’eleganza degli spazi e creare un’atmosfera sofisticata e accogliente. Ogni dettaglio, dai tessuti agli elementi d’arredo fino all’illuminazione, è stato studiato per raggiungere un perfetto equilibrio tra stile, comfort e funzionalità.

Il risultato finale è un appartamento moderno ed elegante, dove ogni spazio riflette personalità e armonia, offrendo una casa accogliente e sofisticata che unisce design contemporaneo e calore dei materiali naturali.

Fotografo: Alessandro Santi
Opera d’arte: Sanda Skujina
_archventil_interior_design_architettura_development_pavia_107mq_styling_interni_residenziali

Progetti in vetrina

_archventil_interior_design_commerciale_ufficio_showroom_studio_milano_vico_sant'ambrogio_headquarter_colore_cucina_terrazzo_dexelance_binova_marmo_forbo_muuto_saba_liujoliving_ton_miniforms_jab_qooker_lacividina_axolight_marazzi_garofoli_lampex_peter_frey
Interni Commerciali

Casa Archventil: ufficio di 340mq con terrazza panoramica in via Gian Battista Vico, Milano

archventil interior design bnb torino piazza savoia monolocale stile classico contemporaneo bianco openspace soggiorno camera cucina boiserie legno separazione tv girevole
Hospitality

TRN: appartamento BnB di 33mq, piazza Savoia Torino, Italia

archventil_interior_design_soiano_villa_lago_di_garda_italia_residenziale_coppia_internazionale_400_350_ristruttazione_zona_giorno_zona_notte_spa_piscina_interna_effetto_marmo_bambini
Interni Residenziali

SNO: villa storica di 400mq ca, Lago di Garda, Italia