Archventil
Studio internazionale di architettura a Milano

BSC: Appartamento duplex con carattere artistico di 200mq ca, Monza, Italia

Area

200 mq ca

Committente

Archventil

Anno

2025

Posizione

Monza, Italia

Categoria

Interni Residenziali
_archventil_interior_design_architettura_development_immobiliare_commerciale_milano_bosco-monza_milano_italia

Progettazione Interni
& Styling

Il progetto di Monza riguarda un ampio appartamento sviluppato su due livelli, concepito su misura per una coppia di clienti americani dal gusto sofisticato e fortemente personale. Il dialogo continuo con la committenza ha rappresentato uno degli aspetti più stimolanti dell’intero processo progettuale, permettendo di esplorare soluzioni non convenzionali e di costruire uno spazio che rispecchiasse pienamente la loro sensibilità estetica e il loro stile di vita.


L’abitazione si distingue per una raffinata contaminazione di linguaggi, stili e suggestioni, sapientemente equilibrati attraverso un’attenta selezione di materiali, colori ed elementi decorativi. Il progetto nasce da un percorso di sperimentazione consapevole, volto a creare un ambiente coerente e armonico, capace di esprimere un’identità forte e riconoscibile senza rinunciare all’eleganza e alla funzionalità.


L’approccio progettuale privilegia la continuità spaziale e visiva, valorizzando la luce naturale e il rapporto tra i diversi ambienti. Ogni scelta, dalle proporzioni architettoniche alle finiture, è stata studiata per dare vita a un’abitazione contemporanea, accogliente e dal carattere deciso, in cui estetica e comfort convivono in perfetto equilibrio.
Dopo/After
_archventil_interior_design_architettura_development_immobiliare_commerciale_milano_bosco-monza_milano_italia
Prima/Before
_archventil_interior_design_architettura_development_immobiliare_commerciale_milano_bosco-monza_milano_italia

Dettagli
del Progetto

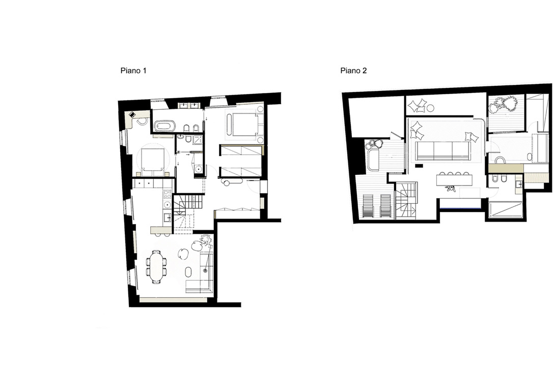
Il primo livello dell’appartamento è dedicato principalmente alla zona giorno e accoglie l’ingresso, la cucina, il soggiorno e la camera padronale. Questo piano è stato progettato come uno spazio fluido e continuo, capace di ospitare funzioni differenti senza rinunciare a una chiara e ordinata definizione delle aree. La cucina e la zona living dialogano in modo armonico grazie a soluzioni architettoniche studiate ad hoc e a elementi d’arredo che organizzano gli spazi in maniera naturale, garantendo al contempo una forte unità visiva e funzionale.

Dal punto di vista architettonico, la scelta di una base neutra, caratterizzata da pareti in tonalità chiare e da un pavimento in parquet, contribuisce a creare un’atmosfera luminosa, equilibrata e accogliente. Questa impostazione sobria rappresenta il fondale ideale per valorizzare gli elementi cromatici e decorativi del progetto. Il colore assume un ruolo centrale soprattutto attraverso il soffitto, dipinto in un intenso tono ocra e arricchito da un elemento decorativo perimetrale che introduce una nota delicatamente vintage, capace di conferire personalità, calore e profondità all’ambiente.

La cucina si distingue per l’abbinamento di legno e marmo dalle venature marcate, una scelta che genera un contrasto elegante e materico e che mette in risalto la qualità e la naturalezza dei materiali. Nel soggiorno, il colore diventa un vero e proprio strumento progettuale, con l’introduzione di tonalità decise come il verde smeraldo, bilanciate da accenti più leggeri e raffinati, come il celeste, presenti in alcuni arredi accuratamente selezionati.

Il filo conduttore dell’intero progetto è la costante ricerca sui colori, sulle forme e sui contrasti, sviluppata in modo coerente in tutti gli ambienti della casa. Questo approccio si estende anche alle camere da letto, dove una sapiente combinazione di materiali, finiture e stili contribuisce a creare atmosfere uniche e personalizzate, rafforzando l’identità di ciascun spazio e offrendo un’esperienza abitativa completa, ricercata e distintiva.
_archventil_interior_design_architettura_development_immobiliare_commerciale_milano_bosco-monza_milano_italia

Progetti in vetrina

_archventil_interior_design_commerciale_ufficio_showroom_studio_milano_vico_sant'ambrogio_headquarter_colore_cucina_terrazzo_dexelance_binova_marmo_forbo_muuto_saba_liujoliving_ton_miniforms_jab_qooker_lacividina_axolight_marazzi_garofoli_lampex_peter_frey
Interni Commerciali

Casa Archventil: ufficio di 340mq con terrazza panoramica in via Gian Battista Vico, Milano

archventil interior design bnb torino piazza savoia monolocale stile classico contemporaneo bianco openspace soggiorno camera cucina boiserie legno separazione tv girevole
Hospitality

TRN: appartamento BnB di 33mq, piazza Savoia Torino, Italia

archventil_interior_design_soiano_villa_lago_di_garda_italia_residenziale_coppia_internazionale_400_350_ristruttazione_zona_giorno_zona_notte_spa_piscina_interna_effetto_marmo_bambini
Interni Residenziali

SNO: villa storica di 400mq ca, Lago di Garda, Italia